Petits sites de Lewisham, Londres

  • MOA : London Borough of Lewisham
  • surface : 22 logements
  • statut : Construction en cours

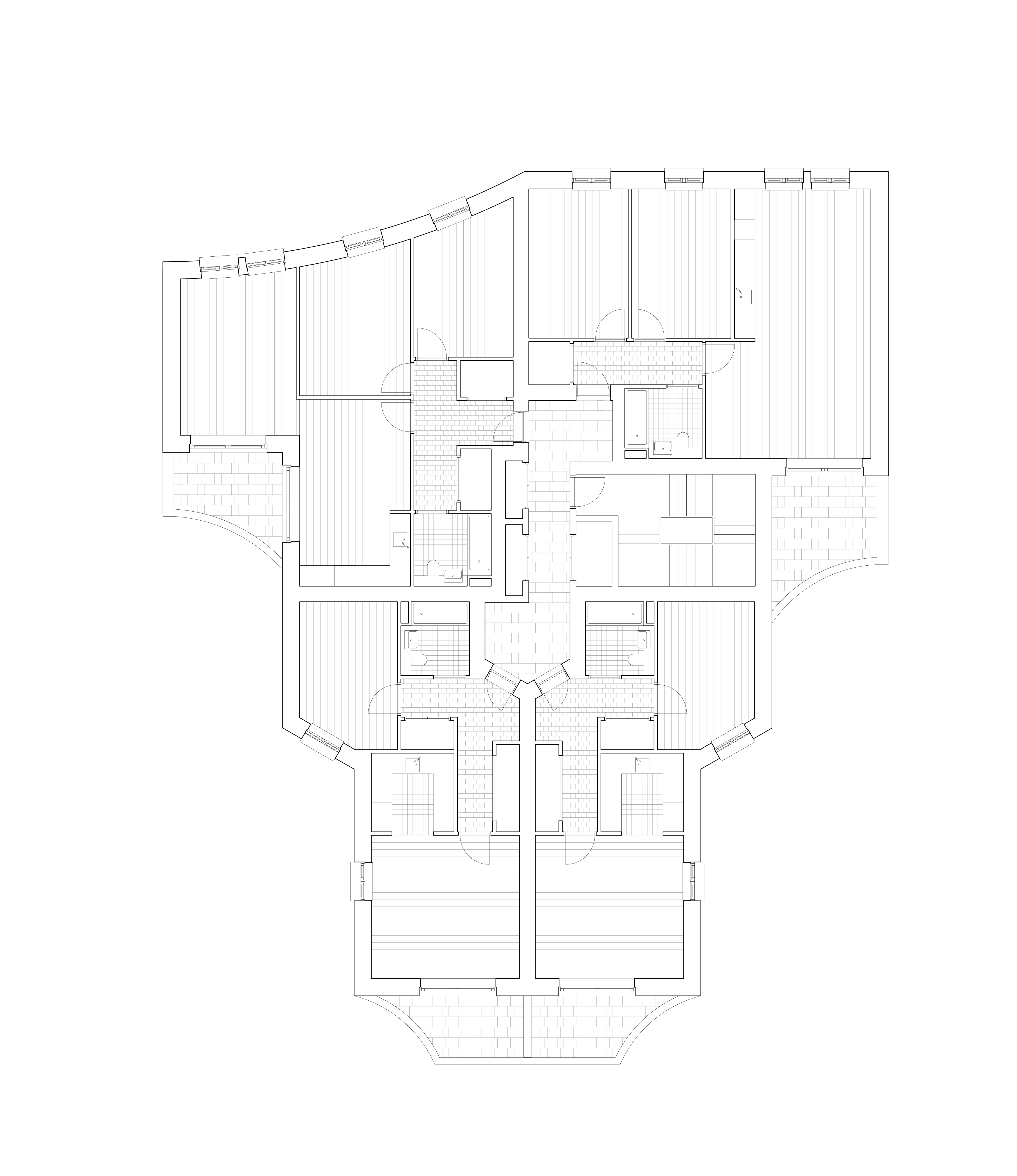
À la suite de l’analyse de viabilité d’un portefeuille plus large de sites intercalaires dans le quartier de Lewisham, réalisée par Stephen Taylor Architects, trois sites ont été identifiés pour la construction de nouveaux logements. Notre approche pour Elderton Road, Walsham Road et Waldenshaw Road a consisté à maximiser la densité sans compromettre la qualité du domaine public ou les relations avec le contexte environnant, afin de fournir des logements efficaces et exemplaires. Au total, 22 nouveaux logements HLM seront fournis sur les trois sites, en plus d’un nouvel aménagement paysager bio-diversifié et d’une infrastructure verte et bleue résiliente.

Une architecture de grande qualité, faite de matériaux robustes et durables qui résistent aux intempéries et vieillissent avec grâce au fil du temps, utilise un ensemble simple de composants d’une manière efficace et adaptée au site. Une palette limitée de briques et d’éléments en béton préfabriqué pigmenté confère une simplicité calme aux projets, contribuant à créer un aspect familier mais contemporain qui ajoute au caractère des différentes rues. Alors qu’une seule équipe de conception a apporté une économie de moyens sur un certain nombre de sites, chaque proposition est le résultat d’une étude minutieuse du contexte environnant et d’un engagement avec les acteurs locaux.

Les projets Elderton Road et Walsham Road ont reçu un permis de construire au cours de l’été 2022 et sont actuellement en cours de construction. Waldenshaw Road a reçu le permis de construire en juin 2023.

  • Petits sites de Lewisham, Londres

    • MOA : London Borough of Lewisham
    • surface : 22 logements
    • statut : Construction en cours

    À la suite de l’analyse de viabilité d’un portefeuille plus large de sites intercalaires dans le quartier de Lewisham, réalisée par Stephen Taylor Architects, trois sites ont été identifiés pour la construction de nouveaux logements. Notre approche pour Elderton Road, Walsham Road et Waldenshaw Road a consisté à maximiser la densité sans compromettre la qualité du domaine public ou les relations avec le contexte environnant, afin de fournir des logements efficaces et exemplaires. Au total, 22 nouveaux logements HLM seront fournis sur les trois sites, en plus d’un nouvel aménagement paysager bio-diversifié et d’une infrastructure verte et bleue résiliente.

    Une architecture de grande qualité, faite de matériaux robustes et durables qui résistent aux intempéries et vieillissent avec grâce au fil du temps, utilise un ensemble simple de composants d’une manière efficace et adaptée au site. Une palette limitée de briques et d’éléments en béton préfabriqué pigmenté confère une simplicité calme aux projets, contribuant à créer un aspect familier mais contemporain qui ajoute au caractère des différentes rues. Alors qu’une seule équipe de conception a apporté une économie de moyens sur un certain nombre de sites, chaque proposition est le résultat d’une étude minutieuse du contexte environnant et d’un engagement avec les acteurs locaux.

    Les projets Elderton Road et Walsham Road ont reçu un permis de construire au cours de l’été 2022 et sont actuellement en cours de construction. Waldenshaw Road a reçu le permis de construire en juin 2023.

Logement urbain, Brentford Lock
Logement urbain, Londres
Maison de retraite, Vella
Maison individuelle, Naxos, Grèce
Développement à usage mixte, Zurich