Haslam House, Harrow, Londres

  • MOA : Conseil Municipal de Harrow
  • surface : 9 maisons
  • statut : étude en cours

Ce projet de neuf maisons neuves du secteur locatif privé, dirigé par le conseil municipal, est situé sur une friche industrielle à Stanmore, Harrow. Le site appartient au Conseil Municipal de Harrow et fait environ 0,16 hectares.

 

La proposition réagit à un certain nombre de contraintes, notamment la configuration irrégulière du site, la conservation/protection des arbres, les services souterrains et les droits de lumière des habitations voisines. La conception de la cour est une réponse contextuelle aux défis du site, et fait référence aux béguinages flamands.

 

Un ensemble de maisons T3 est disposé sur le site autour d’une cour commune partagée. . Le langage conceptuel des habitations a été soigneusement développé pour donner au projet une identité cohérente, qui s’engage et renforce le caractère de son contexte. Un type de maison simple est disposé sur l’ensemble du site ; au sein de cette expression cohérente, la variation et le caractère distinctif sont trouvés en combinant les maisons de différentes manières : en rangées ou en paires en miroir, selon leur emplacement et leur contexte immédiat. Les habitations sont formées de façades robustes en brique, qui sont rehaussées par des détails en brique et des éléments en béton préfabriqué, qui marquent des moments particuliers tels que les entrées et les parapets.

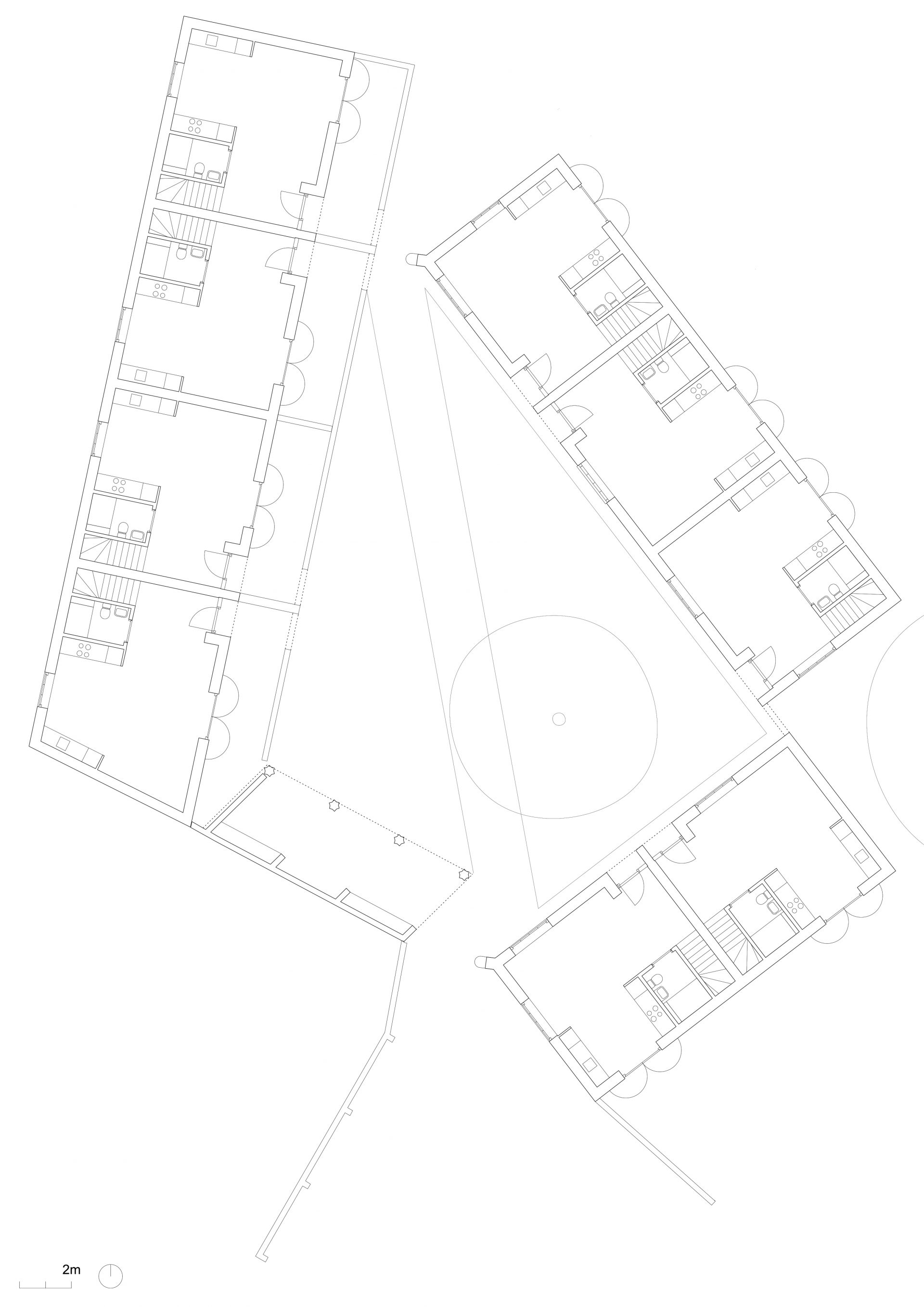
  • Haslam House, Harrow, Londres

    • MOA : Conseil Municipal de Harrow
    • surface : 9 maisons
    • statut : étude en cours

    Ce projet de neuf maisons neuves du secteur locatif privé, dirigé par le conseil municipal, est situé sur une friche industrielle à Stanmore, Harrow. Le site appartient au Conseil Municipal de Harrow et fait environ 0,16 hectares.

     

    La proposition réagit à un certain nombre de contraintes, notamment la configuration irrégulière du site, la conservation/protection des arbres, les services souterrains et les droits de lumière des habitations voisines. La conception de la cour est une réponse contextuelle aux défis du site, et fait référence aux béguinages flamands.

     

    Un ensemble de maisons T3 est disposé sur le site autour d’une cour commune partagée. . Le langage conceptuel des habitations a été soigneusement développé pour donner au projet une identité cohérente, qui s’engage et renforce le caractère de son contexte. Un type de maison simple est disposé sur l’ensemble du site ; au sein de cette expression cohérente, la variation et le caractère distinctif sont trouvés en combinant les maisons de différentes manières : en rangées ou en paires en miroir, selon leur emplacement et leur contexte immédiat. Les habitations sont formées de façades robustes en brique, qui sont rehaussées par des détails en brique et des éléments en béton préfabriqué, qui marquent des moments particuliers tels que les entrées et les parapets.