Aikin Terrace, Hackney, Londres

  • MOA : Conseil Municipal de Hackney
  • surface : 7 maisons
  • statut : livré

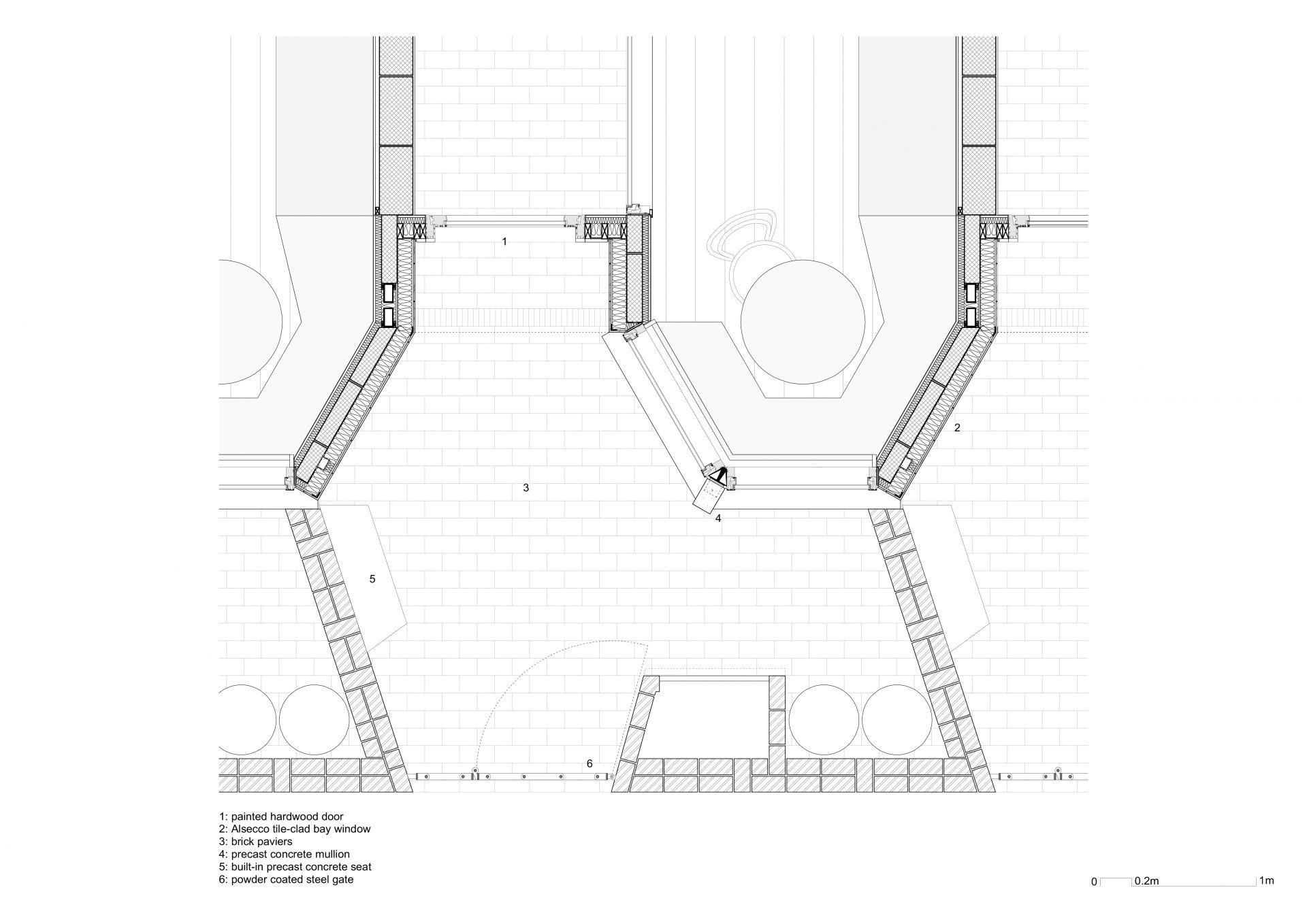
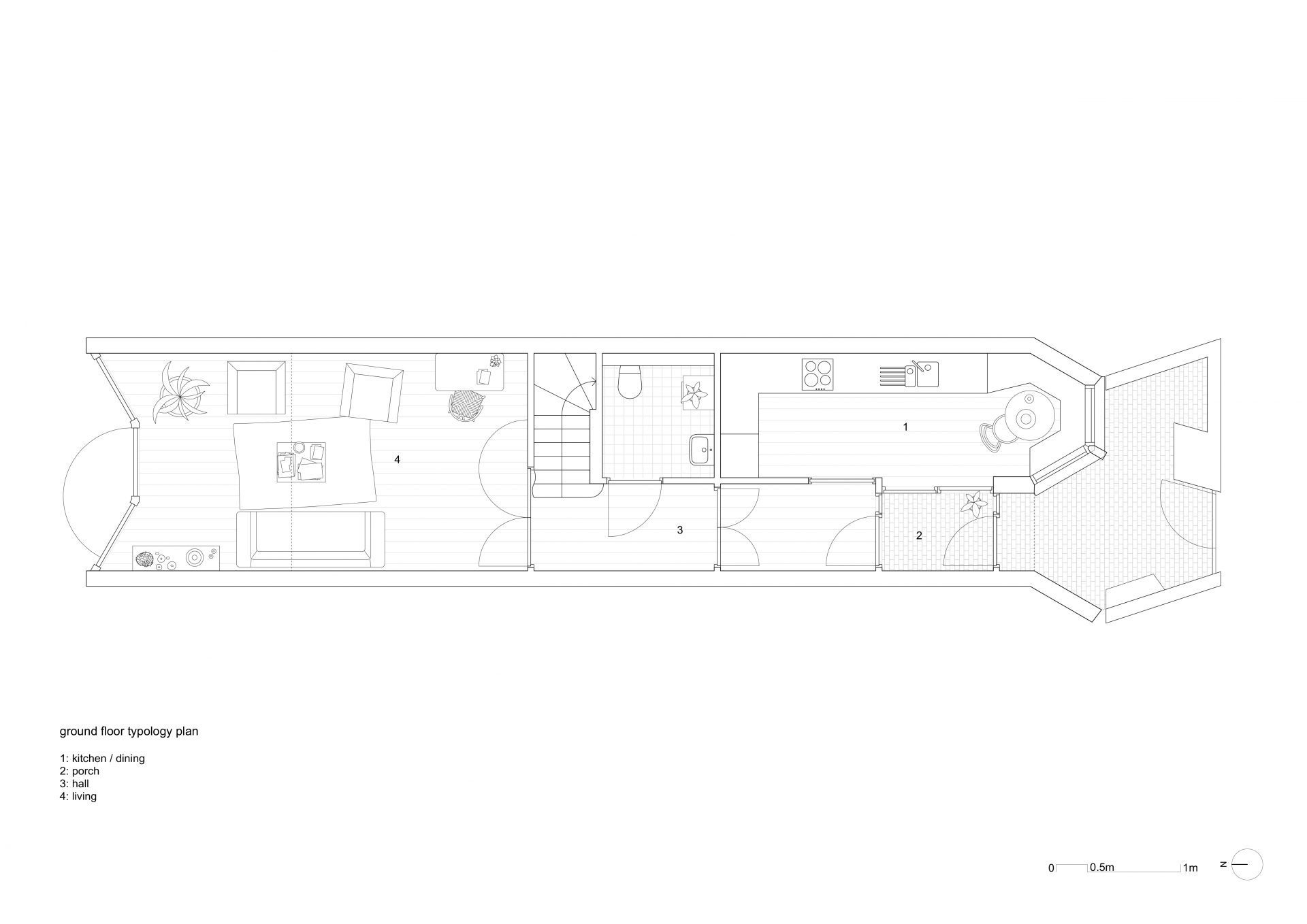
Aikin Villas est l’une des premières opération de logement social menée par la municipalité de Hackney depuis le début des années 80. Elle s’inscrit dans un ambitieux programme de construction qui prévoit la livraison directe de près de 2000 nouveaux logements entre 2018 et 2022. Le projet se situe sur un angle, entouré de maisons mitoyennes construites en briques. L’homogénéité des matériaux et les éléments répétitifs de ces maisons confèrent un caractère cohérent et familier au quartier. Partant de ce postulat, le projet respecte les principes de la maison en bande traditionnelle tout en adaptant sa morphologie et son plan pour créer un bâtiment singulier bien que familier.

 

Les détails et la juxtaposition des matériaux contribuent à abstraire l’image de la maison en bande, la baie et le porche acquièrent une nouvelle image inédite par l’emploi une tuile vernissée marron et une brique d’argile rouge. Le choix des matériaux permet d’ intensifier l’expérience d’habitation du seuil. Il s’agit d’un lieu particulier et généreux, à la fois robuste et urbain. L’image du bâtiment est caractérisée par ses relations urbaines. L’avant, le côté et l’arrière ont des rôles et des expressions architecturales différents. Ensemble, ils créent un bâtiment d’une richesse agréable et respectueux de son contexte particulier, tout en ayant un caractère fort qui lui est propre.

  • Aikin Terrace, Hackney, Londres

    • MOA : Conseil Municipal de Hackney
    • surface : 7 maisons
    • statut : livré

    Aikin Villas est l’une des premières opération de logement social menée par la municipalité de Hackney depuis le début des années 80. Elle s’inscrit dans un ambitieux programme de construction qui prévoit la livraison directe de près de 2000 nouveaux logements entre 2018 et 2022. Le projet se situe sur un angle, entouré de maisons mitoyennes construites en briques. L’homogénéité des matériaux et les éléments répétitifs de ces maisons confèrent un caractère cohérent et familier au quartier. Partant de ce postulat, le projet respecte les principes de la maison en bande traditionnelle tout en adaptant sa morphologie et son plan pour créer un bâtiment singulier bien que familier.

     

    Les détails et la juxtaposition des matériaux contribuent à abstraire l’image de la maison en bande, la baie et le porche acquièrent une nouvelle image inédite par l’emploi une tuile vernissée marron et une brique d’argile rouge. Le choix des matériaux permet d’ intensifier l’expérience d’habitation du seuil. Il s’agit d’un lieu particulier et généreux, à la fois robuste et urbain. L’image du bâtiment est caractérisée par ses relations urbaines. L’avant, le côté et l’arrière ont des rôles et des expressions architecturales différents. Ensemble, ils créent un bâtiment d’une richesse agréable et respectueux de son contexte particulier, tout en ayant un caractère fort qui lui est propre.